drafting
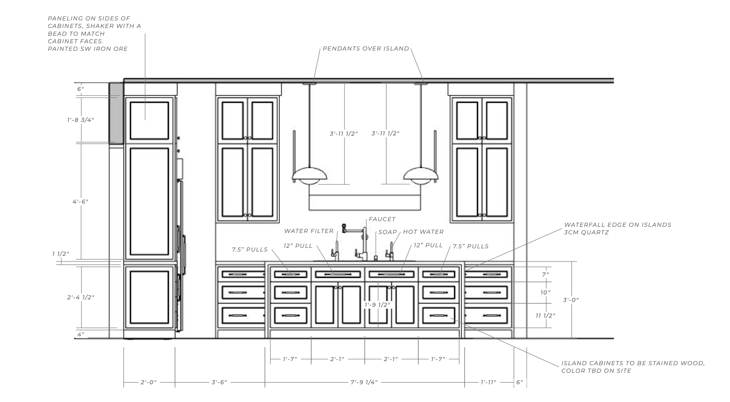
I offer a wide range of drafting services - including floor plans, full kitchen and bathroom cabinet elevations, gallery wall layouts, built-ins, and more. Whether you’re a client or a designer looking for drafting support, I create precise, polished technical drawings that ensure a smooth, accurate execution for any type of project.
Design: Styleberry Creative Interiors
Floor Plan
Design: Styleberry Creative Interiors